2026世界杯
kaiyunsports 二层登第合院自建房, 连廊听雨、三代同堂, 这才是中国东谈主的糊口!

家,不应该仅仅一个寝息的方块盒子,而应是一个能藏住四季、装下家眷记挂的容器。
今天,咱们要共享的这套登第合院决策,简略即是你找寻已久的“精神原乡”。它用白墙黛瓦的古典风骨,包裹着当代糊口的平静肌理,在这一方全国里,从头找回中国东谈主实质里的居住尊荣。
盘算通过改换的L型+围合墙体布局,冲破了传统民居的千里闷。它不仅保留了新登第建筑白墙黛瓦、飞檐翘角的视觉好意思感,更在里面功能上已毕了澈底的当代进化。要是您正揣度回乡建房,这套兼顾顺眼与里子的布局决策,十足值得您手脚参考标杆。

一、 合座布局:多重院落,藏风聚气
多重院落的层级好意思学: 决策并未袭取传统的单一天井,而是巧妙布局了前院、中庭(内院)与后院。这种“三进式”的逻辑,在状貌上为居住者缔造了从“全球”到“精巧”的缓冲。前院是邻里寒暄的礼节空间,中庭则是家东谈主的精神中枢,尔后院则是生老病死的后勤保险,线索分明,动静符合。
“回”字形动线的艺术: 建筑主体呈围合式布局,中间镶嵌一方通透的庭院。这种盘算不仅责罚了农村自建房常见的采光死角,更造成了一个袖珍场合移动器。夏季里,一分彩app官方下载穿堂风邋遢而过,带走暑气;冬日里,暖阳能洒进每一个房间,已毕果然的“全屋通透,四面采光”。
连廊下的四季诗意: 环绕中庭的弯曲连廊,是整栋建筑的“灵魂纽带”。它不仅是流畅各个功能空间的通谈,更是赏景的绝佳位置。不管是“巴山夜雨”时的檐下听雨,还是“瑞雪兆乐岁”时的廊下赏雪,连廊皆让居者在不被风雨滋扰的同期,与大当然保抓着最亲密的搏斗。这种**“东谈主在廊中走,景在院里留”**的居住境界,恰是当代公寓楼所缺失的诗意。

二、 一层盘算:动静分区,开云体育(kaiyun)官方网站待客有谈
一层手脚家庭糊口的中枢区域,强调的是功能性与外交性的完好均衡。
{jz:field.toptypename/}礼序空间: 步入大门,左侧为浩荡的厨房与餐厅,右侧则是大气通透的客厅。客餐厅一体化盘算,通过大面积落地窗直面中庭好意思景,让用餐与待客皆成为一种视觉享受。
南向长者房: 一层南向缔造了两间卧室,围聚卫生间,极大浅薄了家中老东谈主的起居,免去了爬楼梯的穷困。
连廊盘算: 极具登第韵味的连廊将南北建筑主体流畅,即使在雨天,也能在不撑伞的情况下平静地穿梭于各个功能区间。

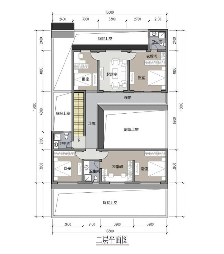
三、 二层盘算:私享静谧,舒居体验
二层主要为家东谈主的私东谈主居住空间,更强调舒戒指与不雅景视线。
套房规格: 二层南向相同设立了两间卧室,中部设有浩荡的衣帽间和零丁的卫生间,打造出行政套房般的居住体验。
起居活动室: 楼梯上来后,设有一个零丁的起居室,手脚家东谈主里面相通的精巧客厅,与一层的会客功能分辩开来。
露台视线: 二层多个方向预留了庭院上空的视线空间,站在窗前即可俯视中庭花坛,果然已毕了“推窗见绿,起步闻香”。

咱们终其一世,皆在寻找一个能让快慰宁下来的场合。简略是在冗忙的中年,给穷困一辈子的父母一处安享晚年的福地;又简略是在须发皆白时,能有一处院落,看儿孙绕膝,听蝉鸣鸟语。在这座院子里,工夫仿佛走得慢了一些,日子也过得更富厚了一些。
不管期间怎样变迁,那一抹白墙黛瓦,始终是中国东谈主心中最深千里的底色。盖一座好屋子,不仅仅为了居住,更是为了传承一份家眷的家风与情感。
上一篇:kaiyunsports 老公的初恋住进了咱们的婚房
下一篇:没有了

备案号: